从2005年以后,Autodesk开始发力Revit(后文简称RVT)推行BIM概念,先今RVT已然有当初AutoCAD在国内辉煌的势头。在国内,无论BIM技能考试、各类BIM设计大赛、BIM培训机构、BIM论坛,都以RVT为主要软件平台;同时RVT格式的BIM模型在设计院、业主单位、施工单位之间的交互已有一定的规模。
经过多版本升级与迭代,RVT功能愈加强大,二次开发接口(API)和文档也已经逐步完善。国内有多家公司在做基于Revit的深度应用二次开发,全面覆盖RVT建模和应用模方面的不足。除BIM之外,甚至有的RVT插件可以将PDMS工程直接拉入RVT中展示:

图1 某插件在Revit中显示PDMS三维工厂模型的设备和管道
RVT提供从三维设计到图纸管理一系列功能,在实际应用中也存在一些问题:
1. 对硬件环境要求较高,模型较大时操作不流畅(Autodesk公司完全有实力解决该问题)。
2. 数据组织方式不同于成熟的数据库模式。实际应用中需要建立RVT族库,或借助特定的软件自动从已有的数据转换。
3. 一些细节尚待完善。如生成的结构平面视图一些情况下消隐处理不符合国内习惯;RVT中一些样式无法调整达到国内施工图要求的效果或需要深度定制。
4. 没有有效的手段依据RVT模型自动生成施工图。现阶段DWG还是出版、交付及归档标准。
在设计院结构专业的实际应用中,RVT的上述问题尤为突出:一方面生产、管理及交付均有强烈的三维结构模型需求;另一方面因结构设计的专业性与反复以及交付的紧迫性,不得不走最为成熟的先二维后三维路线——三维结构模型沦为副产品。正是RVT在实际应用中存在的上述问题,使得设计院结构专业暂时较难以三维结构模型为核心展开工作。
好在RVT本身足够强大,而且二次开发接口相对完善的,RVT在设计院的应用正在好转。首先,结构计算软件厂商如SAP2000、PKPM纷纷先后推出自家结构计算模型转换RVT三维结构模型插件,更进一步的实现RVT与结构计算软件之间的双向接口只是时间问题。其次,有软件厂家已经推出了基于Revit三维结构模型的多专业提资管理、自动生成施工图系统PDST,在RVT中维护好结构三维模型,随时通过PDST生成施工图纸。
REVIT结构三维模型配筋出图软件PDST简介一、计算模型与结构模转换接口
支持SAP2000、PKPM模型转RVT模型的转换。
主要特点:
自动楼板合并;
自动杆件合并;
自动生成和匹配RVT截面族;
自动楼板、梁面对齐;
点击鼠标就能完成模型转换。

图2 通过PDST将SAP2000结构计算模型转换为Revit结构模型
二、砼结构自动配筋、一键出图自动从计算软件读取计算结果,自动多跨杆件识别、配筋并附加到Revit结构三维模型。
在Revit三维模型上维护好配筋信息后随时生成梁、柱、楼板施工图。
主要特点:
三维模型上查看和维护配筋
自动生成的施工图,一键处理文字重叠,钢筋、尺寸定位标注齐全,完全符合施工标准
提供DWG格式刷,一键处理RVT导出DWG文件字体、线形、颜色等样式,智能添加图框
批量化处理,操作简单

图3 通过PDST在Revit中维护选中构件的配筋信息

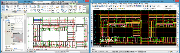
图4 PDST在Revit中自动生成的梁平法图,以及采用DWG格式刷一键处理后的效果

图5 PDST在Revit中自动生成的柱平法图,以及采用DWG格式刷一键处理后的效果

图6 PDST在Revit中计算楼板配筋,自动生成楼板配筋图,以及采用DWG格式刷一键处理后的效果

BIM建筑网