桥梁施工设计主要为桥梁施工中所用的大型临时结构,包括基础施工的钻孔平台及围堰、墩身施工的模板及支架、主梁施工的现浇支架或挂篮等,目前设计过程中都应用CAD(Computer Aided Design)技术绘制设计图纸。随着社会不断向前快速发展,桥梁结构形体越来越新颖、越来越复杂,大型临时结构需要与桥梁结构相匹配,设计人员需在较短的时间内完成大规模复杂临时结构的高质量设计,同时还面临着桥梁具体施工时的条件与设计时的有所不同,临时结构需要进行多次修改,严重制约着桥梁施工设计的发展。BIM(Building Information Modle,三维建筑信息模型)技术的出现,将能够解决目前施工设计中所面临的一些挑战及困难,为设计人员所接受及认可。
1 CAD与BIM的设计技术
1.1 CAD设计技术的现状
现行CAD技术包含二维设计和三维设计技术,其中三维技术中三维建模不可逆,在设计过程中只是起辅助作用,常用的还是二维设计技术,主要通过三视图(立面图、平面图及侧面图)、剖面图描述一个三维结构体。CAD技术在具体设计过程中所遇到的困难有:
(1)图纸信息表述繁冗。二维设计方法是把三维的结构体用离散的线条和文字按设计在平面表达出来,具体表述某个构件时,为了更好的描述其空间位置,需要把与之相关联的构件示意出来,并配文字加以说明。
(2)设计过程中协同困难。大型复杂的临时结构往往是由多个设计人员共同去完成,若某个设计人员在具体设计过程中,如果发现局部不满足要求,需要改变结构形式,就需要与其他设计人员进行沟通,其他设计人员的图纸很多需要重新绘制,造成工作量加大。如果沟通不及时或不透彻,就会出现反反复复的修改,易使设计人员之间产生一定的矛盾,进而影响设计整体进度。
(3)设计质量难以控制,影响施工。CAD二维设计中,对同一个结构构件,需要使用多个视图才能表达,同一个构件需要绘制多次,效率低下。一旦方案发生变化,许多地方都需要重新绘制,加上时间紧迫,容易造成有些地方修改不到,施工现场按图纸加工制造,发现设计与实际不符,导致工期延误,增加施工成本。
1.2 BIM设计技术的特点
目前,BIM在欧美发达国家正在迅速推广使用,很多国家都发布了相应的BIM实施标准。国内BIM的应用主要在建筑领域,并已取得一定成效。
BIM是以三维数字技术为基础,集成了建筑工程项目各种相关信息的工程数据模型,BIM是对工程项目设施实体与功能特性的数字化表达。BIM具有单一工程数据源,可解决分布式、异构过程数据之间的一致性和全局共享问题。一般具有以下特点:
(1)模型信息的完备性:对工程结构进行3D几何信息和逻辑关系的描述,包括构件名称、结构类型、建筑材料,构件之间的工程逻辑关系等。
(2)模型信息的关联性:信息模型中的对象是可识别且相互关联的,系统能够对模型的信息进行统计和分析,并生成相应的图表。如果模型中的某个构件发生变化,与之相关联的所有构件都会随之更新,以保证模型的逻辑关系。
(3)模型信息的一致性:建筑结构的同一信息无需重复输入,且信息模型能够自动演化,在3D信息模型中进行修改,二维工程图中也随之修改,只需对工程图中的仅有的标示进行修改,避免了工程图前后信息不一致的错误。
1.3 BIM应用于桥梁施工设计的价值
BIM的出现,使桥梁施工设计从传统的二维设计转变为三维设计。使用基于BIM的软件系统,先进行结构的三维设计,然后通过生成二维的工程图,再将工程图交付施工现场。在设计过程中可以随时直观地看到结构的三维模型,这个三维模型不同于CAD中的三维模型,它包含结构构件名称、生成方法、与其他构件的逻辑关系等信息。
BIM使设计过程中协同更简便。BIM将整个设计整合到一个共享的三维信息模型,各个设计人员通过这个共享的三维模型进行分项设计,同时可以通过这个三维模型查看到其他设计人员的动态,随时发现相冲突的地方,并及时调整自己的设计。修改后的设计可以即时地反馈到其他设计人员,将原来设计人员的口头沟通转化为软件系统识别,极大地提高了设计效率,保证了信息传递的完整和准确性。
BIM使得设计修改更便捷。如果结构体系没有发生原 则性的变化,仅为三维模型的局部设计修改,则修改后的结果会在各个工程图中自动协调更新,并对工程图中的标示进行局部调整修改,修改出图效率大大提高。
2 CAD与BIM的工程应用比较
2.1 工程概况
新白沙沱长江特大桥是渝黔铁路的关键控制性工程,全长5.32 km,主桥布置为(81 162 432 162 81)m,是世界上首座双层六线双塔双索面钢桁梁铁路斜拉桥。上层四线客车线,下层两线货车线,同时也是世界上延米载荷最大的桥梁,活载达33.6 t/延米,恒载达99 t/延米。
主塔为2#、3#主塔,采用H形桥塔,2#塔高175.45 m(含塔座), 3#塔高192.45 m(含塔座),2#塔与3#塔在下横梁以上高度外轮廓完全一致,下横梁中心线以上桥塔主体高度为147.75 m,上塔柱高64.75 m,中塔柱高81.20 m。2#塔下塔柱高度为23.7 m,3#塔下塔柱高度为40.7 m。下横梁为预应力混凝土结构,采用双室空心矩形结构,高7.0 m,宽10.0 m,顶、底板厚0.8 m,腹板厚0.7~1.0 m,支座处设有横隔板,横隔板厚2.0 m。上横梁为预应力混凝土结构,采用单室空心矩形结构,高7.0 m,宽7.5 m,顶、底板厚0.7 m,腹板厚1.0 m。
2.2 3#主墩施工方法
3#基础位于水中,墩位处部分河床已侵入承台范围内,因此在基础施工前需进行河床的水下爆破清理。为快速形成钻孔能力,保证长江汛期来临以后钻孔的安全性,同时考虑到主墩距离川黔线白沙沱桥距离较近,故采用先平台后围堰的方案。下塔柱采用翻模施工,中、上塔柱采取液压爬模施工。下横梁采用钢管柱支架法施工,混凝土分两次浇注,第一次浇筑总高度为4.0 m的底板及腹板,第二次浇筑高度3.0 m,下横梁和同一高度范围内的塔柱同时浇注。上横梁待与横梁相交段塔柱爬模施工通过后,再搭设支架施工上横梁,支架采用在塔柱上设置预埋牛腿和预埋件搭设现浇支架。
2.3 3#主墩下横梁施工设计比较
以下拟对3#主墩下横梁支架设计分别采用CAD设计技术及BIM设计技术进行的设计内容进行比较。
2.3.1 CAD设计方法
准备工作:绘制主塔结构主要为下横梁及下塔柱的三视图,此结构二维电子图纸可从桥梁设计单位得到。
支架系统的布置:下横梁底模布置,可采用整体钢模和木模,此时仅需确定模板高度;模板底部分配梁布置,此时也仅需预留一定的高度(常用的工字钢高度);钢桁梁的布置,主要是根据下横梁断面布置其间距,桁架的结构形式需通过计算确定;钢管立柱系统的布置,与钢桁梁之间需预留一定的高度设置后期支架卸落的装置,钢管之间的间距需要与钢桁梁共同计算考虑,保证两者受力满足要求,同时结构形式简便合理。
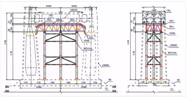
3#主墩下横梁现浇支架总体布置见图1。

图1 新白沙沱长江特大桥3#主墩CAD设计
下横梁支架布置出来后,即可与施工现场交流沟通,确定结构所用钢材的形式,就可进行具体设计。根据计算结果可分几大块进行独立设计,主要包括承台上设置的预埋件、钢管立柱系统、卸落结构装置、钢桁梁、模板系统、边支点等。各部分设计完成后,在总布置图上将各结构进行重新组拼,进一步检查确定各部分之间的关系,发现问题各部分重新修改设计,重复上述过程直至结构完善,最后打印出图,设计任务完成。
2.3.2 BIM设计方法(从上而下设计)
准备工作:根据主塔结构图纸绘制三维BIM模型,由于目前国内桥梁设计单位无可直接用于设计的三维BIM模型,此工作量较大。
支架系统的布置:底模系统的布置,此时仅需布置模 板的中心线或者定位线,同时定义模板系统与下横梁底面的逻辑关系;模板底部分配梁的布置,仅需布置分配梁的中心线,同时定义分配梁与模板底面、分配梁之间的逻辑关系;钢桁梁的布置,需布置钢桁梁的骨架线,定义其与上面分配梁的逻辑关系,由于分配梁数量较多,定义逻辑关系时需要一定的技巧,同时定义多片钢桁梁间的逻辑关系;钢管立柱系统的布置,从上而下定义出各节段钢管的轴线,并定义各钢管与钢桁梁及承台预埋件间的逻辑关系。上述过程中需要对每根杆件进行命名且名称不能重复。
具体设计:结构布置完成后,将模型信息进行共享,该工程施工设计项目其他成员根据此数据信息进行各分部的具体设计,设计过程中可适时的保存数据信息,其他成员可立即获得最新修改信息,再对自己所负责的分部进行调整。三维BIM模型设计完成后,再对各部件及零件出工程图。设计任务完成之前重复修改设计的过程比较少或者不会出现。
2.3.3 BIM设计方法(从下而上设计)
根据主塔结构图纸绘制三维BIM模型,根据以往类似结构将支架拆分为多个零件,并绘制成多个零件图,同时对零件进行命名,再对绘制好的零件进行逐个装配,装配的过程中逐一定义各零件间的逻辑关系,同时调整各零件的定义参数的具体数值,使之满足总体设计,BIM三维模型设计完成后,再对各部件及零件出工程图。
2.3.4 CAD与BIM在修改设计工程中的比较
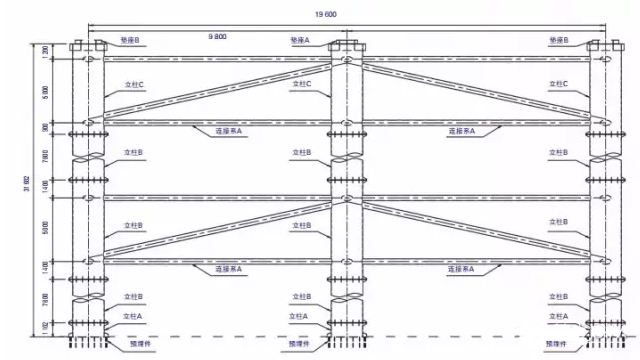
假设已分别采用CAD技术及BIM技术设计将下横梁支架设计完成。以下横梁支架中的钢管立柱系统需要进行修改设计(见图2),分别采用CAD二维和基于BIM的三维软件进行设计修改比较。

图2 下横梁支架中钢管立柱立面(修改前)
由于某种原因钢管立柱下部立柱间距减小3 m,外面一排钢管由竖直变成倾斜,钢管立柱系统细部结构发生变化的有:立柱A2结构(含底部连接法兰)、立柱C2结构(含底部连接法兰)、连接系A1结构、连接系A2结构等(见图3)。

图3 下横梁支架中钢管立柱立面(修改后)
采用CAD二维设计时,先在总布置图进行修改,再到各个具体结构详图中修改,涉及到修改地方较多,往往会出现有些地方已经修改,某些局部由于人为疏忽而未修改,造成图纸前后不对应的情况,这就要求设计人员和图纸审核人员非常认真仔细的核对。
采用基于BIM的三维软件设计时,先在三维模型中进行修改,由于构件名称是一一对应的,需要对杆件重新命名编号,在对细部结构连接法兰处理也较困难,由于结构变化产生新的结构工程图中需要重新生成。在三维模型修改时,特别是在细部结构处理时所耗时间精力较多,在材料统计方面,模型虽然可以自行生产,但与传统表述还有一定的差异,还需进一步修改,同时还需要对新增的结构零件进行出工程图。
但是如果设计方案修改方向相反,即外侧钢管由倾斜变成直立,采用基于BIM的三维软件设计将会非常方便快捷。
3 BIM应用于桥梁施工设计的总结及展望
通过与CAD设计技术的比较,在现阶段BIM设计技术还无法完全取代CAD设计技术。BIM是一个全新的理念,涉及到一系列的改革和创新,国内尚无与之配套的软件,国外主流的软件与国内实际工程不是很配套,由此造成的工作效率远远不及CAD二维设计,设计人员使用的热情不高。BIM的三维模型信息多,初次设计建模时所耗时间精力较多,且不能快速出成果。对待一些特别复杂的施工结构,采用BIM进行设计,需要处理大量的逻辑关系,对于设计员在短时间内无法在设计过程中一次理清,同时由于当今工程建设的工期非常紧迫,设计人员假如使用BIM软件将无法按时完成设计任务。
建立三维模型需要的电脑硬件配置很高,目前设计人员所用电脑硬件的更新远远跟不上基于BIM三维软件的更新速率,直接造成绘图速度降低,同时容易给设计人员造成情绪性的抵触。
但随着BIM在其他行业不断应用,实用价值会不断地体现出来,同时国内基于BIM的三维软件也会不断涌现,BIM终将会被桥梁施工界所接受及认可,加之国内工程建设的速度将逐步放缓,从快速施工转变成精细化施工,BIM设计技术的应用更是迫不及待。桥梁施工设计人员应该走在工程建设行业的前头,要敢于接受新东西,敢于应用新技术行,敢于接受新技术的挑战。
参考文献
[1] 张建平,李丁,林佳瑞,等。 BIM在工程施工中的应用 图3????下横梁支架中钢管立柱立面(修改后) 施工技术[J]. 施工技术,2012(8)下。
[2] 王哲,闻学坤。 BIM技术在设计工作中的应用研究[C]// 第二届工程建设计算机应用创新论坛论文集,2009: 178-181.
[3] 葛文兰。 BIM第二维度:项目不同参与方的BIM应用 [M]. 北京:中国建筑工业出版社, 2011.
[4] 刘广文,牟培超,黄铭丰。 BIM应用基础[M]. 上海:同 济大学出版社,2013.
[5] 渝黔铁路新白沙沱长江特大桥设计图纸[G].
作者:中铁大桥局股份有限公司设计分公司 胡杰

BIM建筑网