摘要:本文以学生公寓与学生食堂为例,详细介绍了BIM在电气专业设计中,完成照明、电气、弱电、消防各系统的平面图纸以及配电间大样图的绘制,特别对公共区域的电气管线进行了具体的综合排布,展现出实际施工完成后的状态,完成最终电气设计模的全过程。

1.电气设计
1.1项目概况
此次应用BIM设计的工程为某大学学生公寓与学生食堂。其中学生公寓建筑面积10410m2,地上5层,建筑高度20m;学生食堂建筑面积4768m2,地上2层,建筑高度14m。从理论上讲,信息模型可以直接用来指导建筑施工。但是,现阶段的市场交付标准仍需要将三维模型转化为施工图设计标准的二维图纸。
本次设计的最终成果不仅包括建筑、结构、设备、电气全专业配合的三维信息模型,也包括符合各专业现行施工图设计深度的平面图纸。电气专业在此次设计中,完成照明、电气、弱电、消防各系统的平面图纸以及配电间大样图的绘制,特别对公共区域的电气管线进行了具体的综合排布,展现出实际施工完成后的状态,完成最终电气设计模型。
1.2软件选择
目前BIM核心建模软件主要有Autodesk公司的Revit系列软件;Bentley公司的Bentley系列软件;Graphisoft公司的ArchiCAD软件及Dassault公司的DigitalProject软件。在民用建筑设计中,Revit系列软件因其能较好满足建筑设计特点且全专业配套而得到广泛的应用。本次项目设计,各专业统一采用Revit2013中文版软件进行设计。
1.3前期准备
1.3.1电气族的制作
族,作为Revit中最基本的元素,是构成项目的基础。Revit系列软件中自带的电气族按照美国标准制作,不满足目前国内的电气制图标准,并且族库内的族式样过少,难以支撑项目。因此在正式开始项目之前,要根据项目的需求制作所要使用的电气族文件。电气设备、电气桥架、电管、导线、标注等都是不同类型的族,电气族在二维平面图上既要满足国标的制图标准,在三维模型上又要符合事物的实际样貌,还需赋予尺寸、性能、负荷类型、光源参数等一系列属性参数。电气专业的族,类型数量比较庞大,同时族所带属性参数的设置也关系到后续的电气计算、系统创建以及模型效果的渲染(例如空间的灯光效果),因此在制作过程中需耗费大量的时间和精力。图1是本次制作的部分电气族的二维及三维图片。

图1电气族的二维及三维图片
1.3.2工作方式的选择
目前BIM设计的工作方式通常有两种:一种是多专业共用设计模型协同设计,这种方式由于参与项目的所有设计人员全部在一个模型中完成各专业内容的设计,因此即使是小型项目,对计算机系统配置及网络环境要求也非常高;另一种是各专业单独建立设计模型,通过互相链接、复制/监视等方式来达到协同设计,对于小型项目,目前主流的计算机配置和网络基本能够承担设计要求。根据现有条件,本项目选择第二种工作方式。电气专业的工作模式采用本专业中心文件+链接其它专业中心文件,按电气系统划分工作集,见图2。工作集是在Revit当中出现的一个新概念,它是一个权限的概念,多人在同一设计模型中操作,每人仅可以对具有权限的工作集进行编辑,避免工作中出现混乱,当有需要时可以借用权限或者根据需要随时创建新的工作集。

图2电气工作方式示意图

图3房间及走道剖面图
1.4设计过程
1.4.1模型的建立
a.中心文件
在准备好电气族库,选择好工作方式之后,就可以开始正式的设计工作了。首先是链接建筑专业模型,建立电气中心文件,创建好之后放置在公共服务器上。
b.本地文件
每个电气设计人需要在本地计算机上创建一个自己的本地文件。本地文件相当于中心文件的一个副本,设计人在本地文件上进行与个人相关的工作集、楼层平面等参数设定,进行各种设计绘图和操作,并通过实时同步中心文件将本地文件上的所有新内容同步到中心文件中,同时将中心文件上其他设计人的新内容同步到本地文件中,这样就实现了实时共享,协同设计。
1.4.2模型设计(绘图)
BIM与传统的建筑设计根本的不同在于从二维的平面转变为三维的模型,因此在用Revit绘图的时候也有二维平面和三维模型两种绘制状态。通常情况下,我们与使用CAD一样是在二维平面中进行电气布点、连接管线、各种标注,在这个过程中可以随时切换到三维模型窗口进行观察,可以见到各种电气设备与管线在模型空间中的实际位置与样式。绘图的具体操作方法这里不再叙述,下面是Revit在绘图过程中与现有二维绘图方式差别较大的一些地方。
a.布点
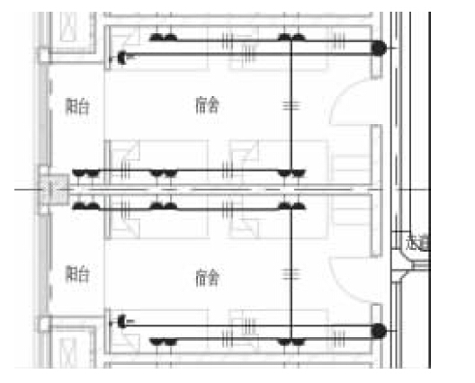
在Revit中,我们也按照楼层来划分平面,在各平面中布点的时候,电气设备除了平面中有确定位置外,在剖面中还会有一个确定高度,这对于三维空间来说是非常重要的,它决定了设备在空间中的最终位置。在制作族的时候可以直接给每种电气设备族设置默认高度,也可在模型中放置时调整。图3为房间及走道剖面图,从图中可看到电气设备及桥架等均有确定高度。
b.管线
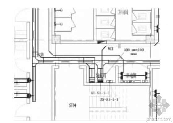
Revit中,电气管线有两种。一是电气桥架和电管,一种是导线。电气桥架和电管与电气设备一样具有真实的样貌与尺寸参数,能够在二维平面和三维模型中显示;而导线则具有线缆的各种参数,能够显示在二维平面中却无法在三维模型中显示。由导线连接的电气设备可以创建电气系统,在后期还可生成配电盘明细表;但电气桥架和电管连接的电气设备则无法生成电气系统。因此当绘制电气管线的时候我们就有不同的选择,可以根据所需的项目成果来选择。例如本工程中,电气干线选用电气桥架和电管来绘制(如图4所示),这样在最后的三维模型中就能够很清楚地展现出电气干线桥架和管的规格、位置、路由,并方便后期与设备专业进行管线综合;支线则选用导线来绘制(如图5所示),这样较用管来绘制更快捷、更适于输出平面施工图纸,并可自动生成末端配电盘系统。当然设计人也可以选择整个项目全部使用电气桥架和电管或全部使用导线。

图4电气干线采用电气桥架及电管布线

图5末端支线采用导线布线
c.剖面绘图
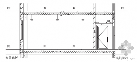
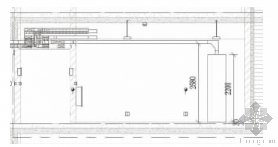
对于电气桥架和电管,仅在平面中绘制有时难以表示清楚竖向的位置和相互关系,Revit中可选取平面中任意位置转到此位置的剖面,在剖面图中可方便地绘制调整竖向电气管线及与电气设备的连接(如图6所示)。

图6配电间及走道剖面图
d.电气系统
在我们现在的施工图中,强弱电干线系统图、配电盘系统图的表示方法是一种示意性的表达方式,目前的Revit软件中不具备绘制此种示意性图纸的方法,不能够绘制强弱电干线系统图,而它的配电盘系统(包括强电和弱电)是用配电盘明细表来表示的。图7为学生公寓房间配电盘明细表。

图7学生公寓房间配电盘明细表
1.5碰撞检查
碰撞检查是BIM中一个很实用的功能,通过这个功能可以检查出建筑模型中存在的一些我们没有发现的专业内部或专业之间的设计冲突。对于电气专业来说,在和设备专业进行管线综合时,可以通过对两个专业的管线进行碰撞检查自动发现管线冲突、显示冲突位置并及时调整。同一个模型内的碰撞检查可以通过Revit软件自身所带此功能进行,不同模型的碰撞检查(例如一个大型项目由于硬件限制而分成几部分建模)也可以采用专门的BIM模型综合碰撞检查软件来进行,常用的有Autodesk公司的Navisworks软件;Bentley公司的ProjectwiseNavigator等。
1.6出图和发布
Revit提供多种发布方式,包括图纸打印、导出DWG、DWF及JPG格式文件等。模型完成后,即可创建所需图纸,并自动生成项目的图纸目录、设备明细表。图8为本项目完成后得到的图纸样式。

图8食堂照明平面图
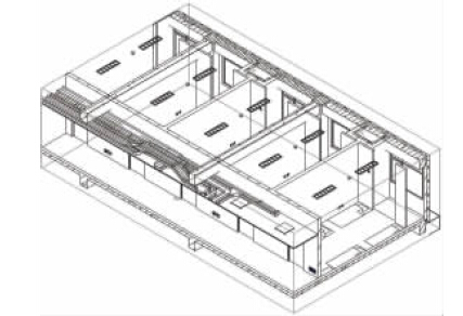
1.7模型成果
本项目在设计完成后,得到电气三维设计模型,见图9、图10,图中可见全部电气设备与电气各系统干线桥架和电管,真实地模拟了建筑建成后的电气情况。

图9学生食堂三维电气设计模型(全景透视)

图10学生公寓三维电气设计模型局部(房间和走道)
2小结
经过实际使用Revit软件进行BIM电气设计,笔者对新的设计模式与传统设计模式有一些比较和体会。
2.1Revit2013电气部分与CAD的比较
针对电气专业的特点,在达到施工图出图深度的软件)绘图对比如表1和表2所示。

表1电气专业Revit与CAD出图完成率对比表

表2电气专业Revit与CAD绘图时间对比表
2.2存在问题
经过该工程对于BIM的全面应用后发现,用表3现实环境栏中的计算机配置,在绘制学生食堂(建筑面积4768m2)时尚能比较流畅运行,在绘制学生公寓(建筑面积10410m2)时后期响应已经明显延迟。

表3BIM理想环境与现实工作环境对比表
Revit2013软件仍有不足
Revit2013软件是目前建筑BIM设计中广泛应用的软件,但其电气部分仍然不够完善:
a.缺少统一的标准电气族文件库。Revit中所有的图元都是基于族的,也可以说最终的项目信息模型就是由各种系统、各种类型的族组合形成的。现阶段电气专业的族文件较少,在项目之初需自行制作大量的族文件,该过程较为费时费力,占去了工作的大部分时间与精力。因此建立一个统一的标准族文件库,才能促成BIM设计的标准化、规范化。
b.电气桥架和电管的问题。电气桥架和电管不具备系统连接功能,只有导线才有此功能。若想整个项目的电气系统自动创建就需要所有电气设备均用导线进行连接,这样若再想对主要区域进行机电管线综合,则需要用电气桥架和电管重新绘制一遍此区域的电气线路,增加了工作量。
c.防雷与接地平面目前无法绘制。软件中并未涉及绘制此部分所需要的族(此部分族不同于电气设备族,制作比较复杂,本项目设计人没能自己制作)。
d.强弱电干线系统图目前无法绘制。
精度提高,时间增加
BIM设计中所有的末端及管线放置为保证专业内及专业间相互不碰撞,绘图深度均达到精装修程度,但相应带来了工作中需不断参看他人设计内容及调整已完成内容,将施工解决的问题归入到了设计阶段,增加了设计的工作内容,大大增加了绘图时间。
缺少BIM标准
目前欧美的BIM标准已比较完善,但国内的BIM标准尚需完善。
3结语
BIM设计方式不仅仅是设计工具的变革,也是对传统设计思维习惯的挑战。现阶段在建筑设计中已经可以应用BIM设计完成绝大部分标准施工图图纸,并可以将信息模型应用于未来的施工和项目管理。其优点是提高设计完成度、多专业协同、可进行全面的建筑分析;而其缺点即设计人员的工作量和工作时长会明显增加,从而造成设计成本的增加。随着今后BIM标准和BIM设计软件的不断完善,以及BIM设计在不同规模不同功能的实际工程项目中的广泛应用,终将形成具有较强适应性的系统工作方法,大大提高BIM设计的效率。
(本文有删减,资料来源于网络,如若侵权,请及时联系我们,我们会在第一时间予以处理)

BIM建筑网