右安门医院中型医技病房综合楼项目位于右安门外现有医院院区西侧院内,总用地面积19810.68m,总建筑面积20429.9m,其中地上15259.2m,地下5170.7m。地下两层、地上七层,建筑高度30.00m。本项目为右安门医院的扩建工程,包括医院部分门诊用房、医技用房、病房和手术用房,及医疗后勤用房等。

优化原始平面设计,BIM模型直接出图
本项目设计内容涉及各个专业的各种管线,通过分组的方式将原始图纸进行BIM深化后,将各系统的管线进行碰撞检测,以检查出可能出现的碰撞问题,并据此优化管线相应的标高和布置。

空调系统

给排水系统
利用BIM模型的工程量统计指导施工环节的招投标
以调整完成的最终版施工图为基础,通过MagiCAD的相应功能自动生成工程量清单,准确反应出实际的工程情况,给施工环节的招投标提供了合理化的参考。
结合真实厂商构件库,指导系统初调试
机电系统的联调联试一直是耗费精力和资源的事情。MagiCAD软件包含的构件库包含压降曲线,结合MagiCAD软件的系统平衡计算功能,可以得出阀门在实际工况下的开度数据,从而可以作为系统初调试的基础参考数据。

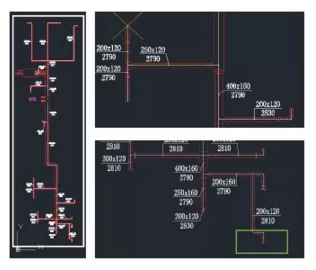
通过水力平衡计算,对管线综合后的模型进行校核
项目初始设计的时候,并未做管线综合。设计模型在经过了施工深化后,对各专业进行了不少的交叉调整和路由优化,导致系统运行的工况发生了变化。虽然设计选型的时候对机组预留了足够多的富余量,理论上满足调整后的实际工况是没有问题的,但不经过校核检查,心里始终没底。所以我们利用MagiCAD软件的系统平衡校核的功能,对部分管线综合后的模型进行了验算。

A.初设时的计算结果
根据经验,假定最远端的设备为最不利点(图示中绿色标记处),利用公式表格进行计算,得出的结果为机组需要的全压为72Pa,表格节选如下。

B.利用MagiCAD软件进行系统平衡计算
软件找到的最不利点为图示中黄叉标记处,得出的结果为机组需要的全压为92Pa。
因为初设时的最不利点与软件找到的最不利点相距较远,同时系统压力差距较大,所以根据MagiCAD软件找到的最不利点,我们利用公式表格进行了复核,得出的结果为机组需要的全压为95Pa,表格节选如下。

这样的复核验算,一方面帮助我们找到了最真实的系统最不利点,为机组的选型提供了更有参考价值的依据;另一方面也说明MagiCAD的系统平衡计算的结果,与我们根据国内规范公式编制的表格的计算结果,几乎是一致的,是可以应用于国内的实际项目的。

BIM建筑网