
根据斯坦福大学集成设施工程中心(Center for Integrated Facility Engineering,CIFE)的研究数据,建筑施工行业的生产效率正在持续下滑。该数据显示,生产效率问题是建筑行业面临的根本性问题,同时也是施工效果无法预测的主要原因。
为了改进这一状况,许多企业将用来描述建筑设计方案的建筑信息模型用到了各种相关的建筑活动中,包括建筑施工和建筑构件的数字化制造。BIM能够支持所有建筑专业中从设计到制造整个工作流程,包括使用结构建筑信息模型完成钢结构的数字化制造。
基于模型的设计和制造
几十年来,制造行业一直在使用机械CAD系统制造数字模型。这些模型不仅能够说明产品的设计,还可以用到其它应用中,如应力分析、现场支持,当然还有制造。CAD模型可以用来生成控制CNC(计算机数字控制)机床,提高机械加工流程的自动化程度。
建筑行业也可以采用类似的方法来实现建筑施工流程的自动化。尽管建筑不能像汽车一样在“加工”好整体后发送给业主,但建筑中的许多构件的确可以异地加工,然后运到建筑施工现场,装配到建筑中。例如,门窗、预制混凝土结构和钢结构等构件。
钢结构建造基础知识
要想了解怎样利用BIM来实现钢结构制造的自动化,我们必须了解构成建筑框架的钢结构组件是怎样制成的。首先,钢厂利用热轧加工流程(通常情况下)制成钢结构原材料。钢结构制造商购入这些原材料,并按照加工详图(详细描述钢结构中每个部分应如何制造的说明书)将原材料切割并制成用于建筑施工的梁和柱。制成后的钢结构组件被运到施工现场,由钢结构安装工进行安装。
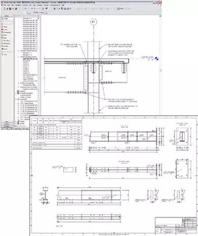
那么现场施工图从何而来?结构工程师的职责是设计、分析并验证建筑的结构框架,并创建记录结构设计的施工图。结构图纸中只包含对钢结构制造的总体要求,即关于典型节点的说明。然后,钢结构详图设计师再根据这些施工图和总体的节点说明来设计具体的钢结构组件和具体的几何形状,并创建加工详图,以便准确地指导钢结构制造商如何制造建筑中的每一个钢结构组件。加工详图中包含材料规格、大小、尺寸、焊接、螺栓连接、表面处理、涂装要求等详细信息。

钢结构施工图(左)中仅包含关于节点的总体说明,而加工详图(下)则包含制造每个钢结构组件所需的所有细节。
详图设计师通常使用绘图软件“手工”创建加工详图或用专门的钢结构详图设计软件来创建加工详图。Autodesk Robobat RCAD就是一款利用数字“制造”模型来创建钢结构详图的解决方案。
需要注意的是,在建筑项目中,加工详图的数量要远远多于施工图的数量。例如,为了记录一个1,000吨建筑项目中的钢结构设计(钢用量为1,000吨),就需要大约70至80张施工图纸和1,000张加工详图。在将加工详图发布到制造环节之前,结构工程师需要检查每一张图纸,以验证其中的信息与结构设计保持一致。
钢结构制造商通常使用数控机床自动切割钢梁并制孔。有些制造商根据加工详图中的信息对数控机床进行手动编程。另外一些制造商则使用上面提到的数字化制造模型自动对数控机床进行编程。
将BIM扩展到制造环节
BIM怎样满足钢结构制造商的需求呢?正如制造业中基于CAD的模型能够支持制造流程一样,专门开发的建筑信息模型,如Revit? Structure,也可以支持结构制造流程。所有与钢结构有关的图形都已经包含在了Revit Structure设计模型中。这些设计信息可以导入到CIS/2文件中(一种行业标准数据格式,用来交换钢结构信息),便于在钢结构详图设计应用中重新使用。

Revit Structure设计模型中的钢结构图形和信息可以通过CIS/2文件导出,然后重新用到钢结构详图设计解决方案中。

Revit Structure设计图形和信息可以重新用到Robobat RCAD等建筑详图设计解决方案中,如图所示。请注意钢结构详图设计应用中添加的更多制造信息。
将建筑信息模型用于钢结构详图设计和制造环节,这样便实现了全数字的从设计到制造流程。重复利用设计模型不但提高了工作效率(省却了用于创建制造模型的时间),而且改进了制造质量(消除了设计模型与制造模型相互矛盾的现象)。此外,钢结构详图设计和制造软件中使用的信息是基于高度精确、协调、一致的建筑信息模型的数字设计数据,这些数据完全值得在相关的建筑活动中共享。
完成加工详图设计后,设计团队或承包商还可以利用该制造模型进行四维建模,也可以会同其它建筑专业和模型(如MEP和建筑设计)进行冲突检查。制造模型并不代表最后的竣工状况,因为在钢结构安装阶段可能还会发生变更。但其中包含的细节比结构模型要多得多,因此在进行冲突检查时非常有用,在空间极为紧张的建筑中更是如此。
将BIM用于钢结构供应链中的另一个优势与结构框架的总体成本有关。过去,钢结构的原材料成本、制造成本和安装成本基本相当。但是最近几年,制造成本和安装成本在不断上涨。为了遏制这一趋势,需要在设计流程中考虑“制造的简单性”(相当于制造行业强调“可加工性”)
将设计模型直接用于制造环节还可以在制造商与设计人员之间形成一种自然的反馈循环,即在建筑设计流程中提前考虑制造方面的问题。与参与竞标的制造商共享设计模型有助于缩短招标周期,便于制造商根据设计要求的钢材用量编制更为统一的投标书。钢结构与其它建筑构件之间的协调也有助于减少现场发生的问题,降低不断上升的钢结构安装成本。
数字化的从设计到制造流程离不开结构工程师、钢结构详图设计人员和钢结构制造商之间的协作。大多数情况下,这三方分别属于三个不同公司。因此,就需要采用不同以往的项目交付方法来连通设计与制造环节,也就是说由业主、建筑商、工程师和承包商组成跨职能的项目团队,就设计、制造和施工环节中的工作进行协调。原本需要按顺序进行的步骤(设计、详图设计、制造)可以并行展开。设计模型和加工详图可以同时创建。完成加工详图的速度越快,就可以越快向钢厂下单,越快开始制造,钢结构也可以越快安装完毕。
数字化制造——成功案例
在将BIM用于数字化制造方面,加拿大著名的工程设计公司Rutherford & Chekene(www.ruthchek.com)堪称行业先驱。成立于1960年,总部位于旧金山的这家多专业公司专门提供结构工程和地质工程服务,业务覆盖医院、体育设施、博物馆、历史性建筑,甚至海洋馆等各类建筑。自2005年起,Rutherford & Chekene公司(R&C)就开始使用Revit Structure,目前拥有该软件的14份许可。他们将建筑信息模型用于设计、分析(与RAM和ETABS配套)以及数字化制造环节。
他们最近开展的一个Revit Structure项目是萨克拉曼多市萨特总医院(Sutter General Hospital Sacramento),这是一座面积达425,000平方英尺的11层建筑,用来取代原有医院。该建筑需要使用5,000多吨钢材,大约需5,000张加工详图。在该项目中,R&C与钢结构详图设计方(Dowco Consultants公司)、钢结构制造商(Herrick Steel公司)以及施工方(Turner Construction公司)开展了密切合作。
R&C公司负责人兼高级工程师David Bleiman介绍说:“医院建筑的相对成本要高——商用建筑的成本为每平方英尺150至250美元,而医院建筑的成本大约为每平方英尺600至800美元,所以此类建筑适合采用不同以往的项目交付模式。目前我们正在计划如何在该项目中与各方进行合作,我们的目标是尽可能地确保所有数据的数字化,并尽可能地使用数字化的数据交换方式。”
等这些设施投入使用后,原有医院建筑要实施爆破,腾出空间建造新的设施。由于工期非常紧张,他们将工作划分为几个阶段。在该项目中的不同阶段,各利益相关方之间需要采用不同协作方法和工作流。Bleiman指出:“第一阶段是将初步的制造模型(本案例中采用Tekla软件创建)与我们的Revit Structure模型进行对比。”
在R&C与钢结构详图设计方开始协作之前,制造模型已经建成,因此需要手动协调这两个模型。Bleiman解释说:“跑之前先要会走,我们需要先学会手动协调这两个模型。但取得的最终结果是一样的,即制造模型与设计模型保持一致,各方在结构设计、制造和安装环节进行协作,从而降低成本,缩短交付时间。”原设计中的任何问题,如尺寸、大小位置等,都将在设计流程中得到及早纠正,进而减少后续阶段中的信息请求(RFI)和变更单。
加工详图完成后,第二阶段的工作就开始了:钢结构加工详图的全数字化评审。加工详图评审工作(原本需要手动打印、传输、检查每张详图的多个备份)将以电子方式在原来创建这些详图的钢结构详细设计软件中进行。
此外,R&C还将使用Autodesk NavisWorks软件对完整的制造模型和原始的建筑模型进行对比和协调。施工方Turner公司也要采用Autodesk NavisWorks软件将结构制造模型与其它建筑专业的模型相结合,以便进行冲突检测。


Rutherford & Chekene公司利用Revit Structure建筑信息模型(如本图及下图所示的医院项目)实现数字化制造
总结
制造行业目前的生产效率极高,其中的部分原因是利用数字化数据模型实现了制造方法的自动化。同样,BIM和数字化制造也能够提高建筑行业的生产效率。
与集成项目交付方法一样,数字化制造方法将推动建筑行业的快速发展。Bleiman总结道:“我们都知道,要实现数字化制造需要解决很多挑战。但是我认为,BIM解决方案肯定能帮助我们显著缩短建筑施工流程,更好地控制项目效果。”

BIM建筑网