中国民航大学宁河校区图书馆位于天津市宁河区,是新校园一期工程的核心建筑。图书馆高23.7m,总建筑面积约40000平方米(其中地上建筑面积约26000平方米,地下建筑面积14000平方米)。校园南校门采用混凝土薄壳结构,形成简洁明确的主入口形象,举重若轻、如翼斯飞。
一、从单向性的知识输送向共享性的知识交流的转变面对新校区既有规划的强烈轴线感与仪式感,中国民航大学图书馆的设计并没有在高度或体量上凸显大学图书馆的独立性与重要性,而是将图书馆作为规划优化提升与系统梳理的空间节点加以塑造,在规划设计层面将纵向礼仪轴进行柔化,同时将横向功能带进一步丰富,形成多向联通的教学生活脉络。
二、从封闭性的建筑单体向开放性的交往空间的转变融汇校园气流、人流、景观流,顺应总体规划脉络,图书馆在校园中央自然生成,位于收放的纵轴与丰富的横轴交汇之处,通过“引流、抬升、漂浮、叠云、拨云”五大步骤生成主体形态。建筑设计顶层出挑,通过形体自遮阳防止下部楼层太阳直射,立面横向长窗降低窗墙比,提升保温隔热性能,回应当地气候特征。
三、从功能性的公共设施向象征性的文化载体的转变中国民航大学图书馆对“阅览一藏书”的二元功能体系进行重新解构。建筑主体分为结构核心、带状舱体、云上阅览三大体系,结构核心布置密集书库及竖向交通,并提供有力的结构支撑,带状舱体层层搭接,容纳通用阅览及办公空间。
云上阅览厅置于顶层,营造平层无柱大空间。形成活力共享、互动开放高效复合的空间组织目标,并在形态上呼应总体设计,塑造新时期的校园地标。云上阅览厅置于顶层,营造平层无柱大空间。形成活力共享、互动开放高效复合的空间组织目标,并在形态上呼应总体设计,塑造新时期的校园地标。
项目图纸
△草图
△分析图
△流线图
△总平面图
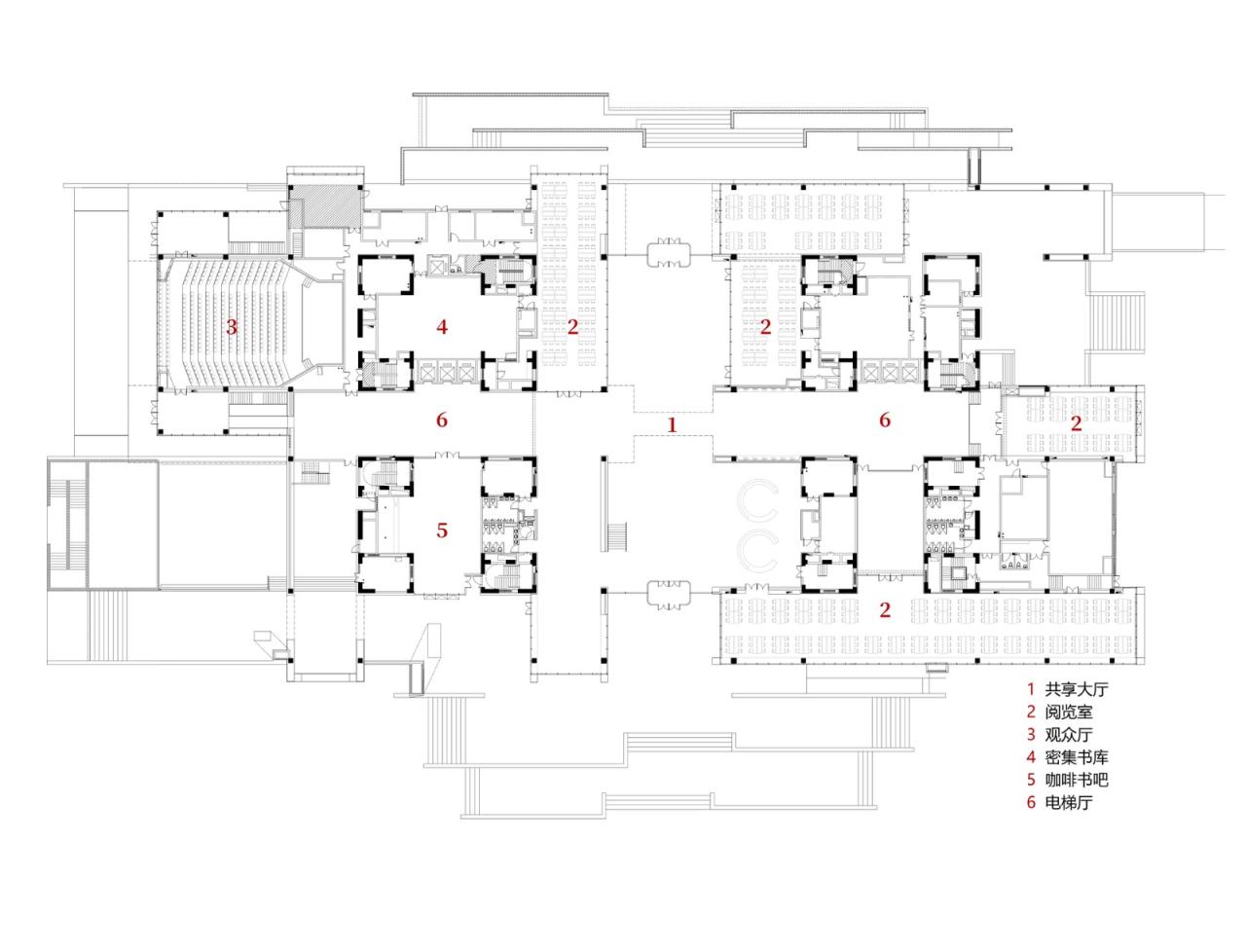
△一层平面图
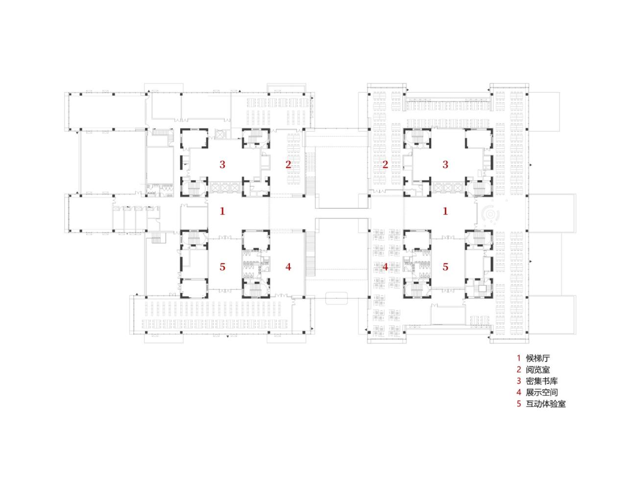
△二层平面图
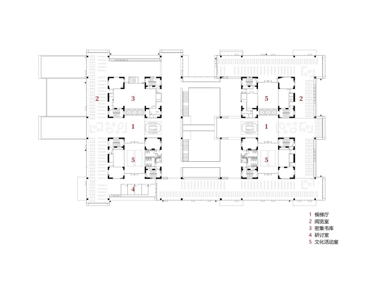
△三层平面图
△四层平面图
△立面图
△剖面图
项目信息
建筑师:同济原作设计工作室
面积:40000m²
项目年份:2023
摄影师:章鱼见筑
主创建筑师:章明、张姿、陈波
建筑设计团队:牟筱童、姚冠杰、孙嘉龙、刘垄鑫
结构设计团队:丁洁民,吴宏磊,张峥,郑超毅,林晨,张月强,刘兴能,段轩萌
设备设计团队:刘建,贾敏,吕宗虎,王海东,吴昊,赵振洲,陈韩秋,苏曼,朱涵,邬怡琼,马静思,张陆陆,郑文彬,孙冰洁
照明设计团队:杨秀,徐霞青,马玥,陈幸如,温海兰,王信,卞晨,顾兴花
技术经济团队:李立漪、顾晶晶、徐敬、苏瑜瑾
绿色建筑团队:郑晓薇、李晓璐、李冬梅、张现
项目管理:浙江江南工程管理股份有限公司
建设单位:中国民航大学
施工单位:中国建筑第八工程局有限公司
地点:宁河


BIM建筑网





































