
Lagunita 住宅是一个二次住宅项目,位于圣地亚哥西北 183 公里处的萨帕拉尔公社萨帕拉尔湖(Laguna Zapallar)。Laguna de Zapallar地区位于 Maitencillo 的北侧,被 Catapilco 河的河口分割开来。它的北面与 Cachagua 海滩接壤,西面是“拉古纳海滩”,东面是 E-30 号公路。


项目占地 300 平方米,南北宽 10 米,东西长 30 米。地块坡度为 25°,从临街的南侧向北侧倾斜。该项目的战略目标是利用整个地块,将地表划分为 3 个主要平台,由两面混凝土墙壁围成,形成并支撑着山坡。第一个平台,即第一层,是到达停车位,直接与车辆通道相连。

室外木质楼梯可通往二层,二层高出街道 3 米。在这里,一个平面尺寸为 7 米 x 7 米、高 5.5 米的简易白色木制立方体将整个住宅项目容纳其中,实现了简单而经济的结构解决方案。第三层位于地块的最高处,设有一个露台,可俯瞰梅滕西略、拉古纳海滩和拉古纳镇的美景。

一进门,客厅、餐厅和厨房连成一体,全部采用 1×4 原英吉利松木,并用柔和的白色油漆进行了处理。南面的大部分区域都被封闭起来,与外部保持着私密性。朝北面开了六扇 Oregon 松木大窗,其中包括一个小型装饰天井,扩大了空间感,并用植被装扮了室内。

为了连接房屋的第二层,我们设计了一个混合楼梯。它的第一节由刨光的松木制成,既是结构也是围护结构,然后呈扇形连接到第二节折叠的金属部分,金属部分厚 5 毫米,下侧用焊接在结构主体上的三角形金属肋条加固。

二层的卧室朝北,可以欣赏到山坡的美景,同时还可以欣赏到花园和邻近地块的植被。朝南/朝西的大窗户通过有顶露台向街道延伸,露台面向大海,成为一座大灯塔,柔和地融入午后的光线,温暖地沐浴着屋内的木质墙壁。

项目图纸

△基地示意图

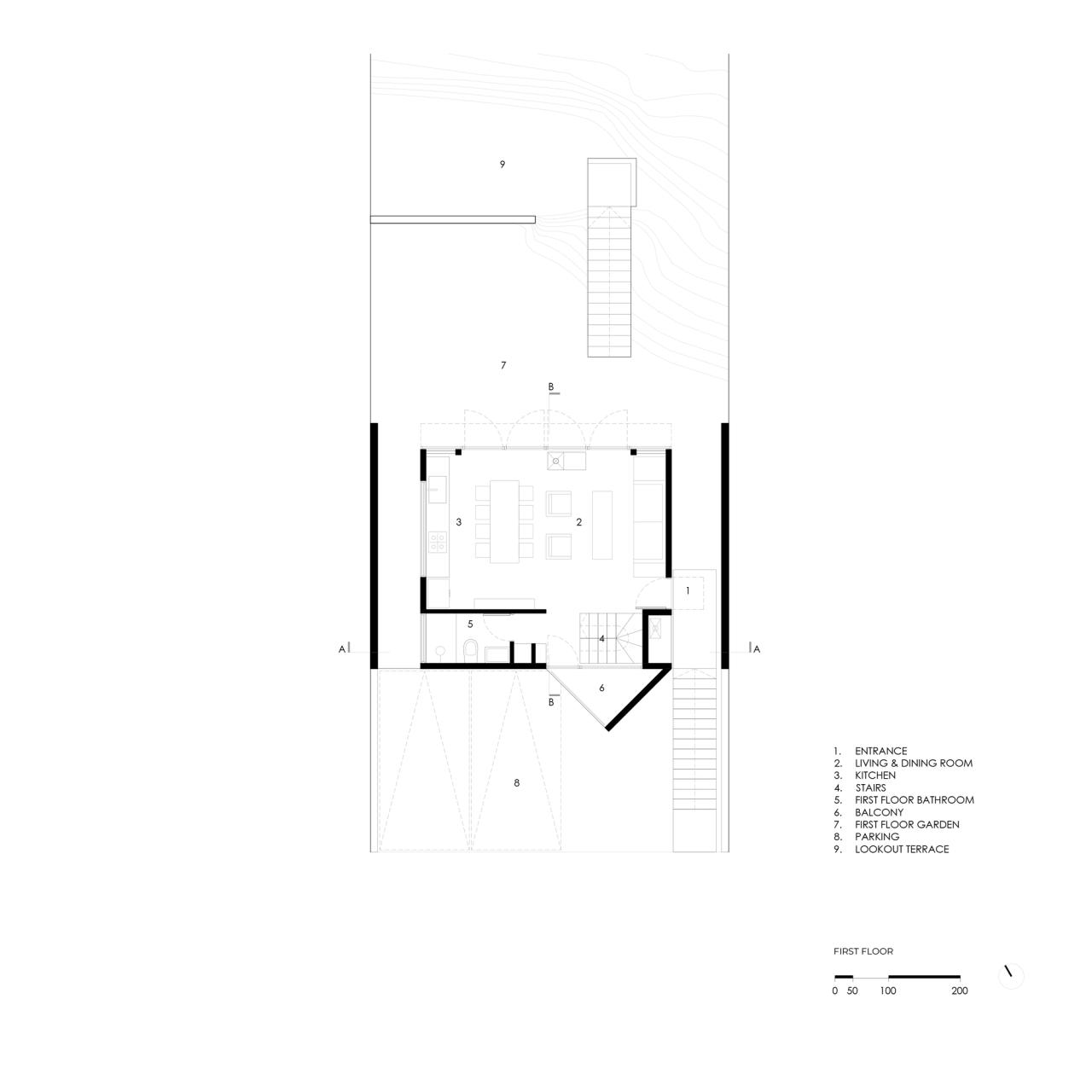
△一层平面图

△二层平面图

△剖面图

△剖面图

△立面图

△立面图

△立面图

△立面图
项目信息
建筑师:Croxatto y Opazo Arquitectos
项目年份:2023
摄影师:Cristobal Palma / Estudio Palma
主创建筑师:Nicolas Opazo, Felipe Croxatto
项目团队:Nicolás Opazo, Felipe Croxatto, Martin Dellatorre, José Pablo O`Ryan, Maximiliano Valle.
合作方:Martin Dellatorre, Jose Pablo O’Ryan, Maximiliano Valle
结构工程师:Luis Della Valle
地点:智利,La Laguna

BIM建筑网





评论前必须登录!
注册