
恒丰材料科技(浙江)股份有限公司是一家专注于生产、研发高科技环保型转移新材料的国家高新技术企业。基地西侧、南侧为风景优美的枫泾塘河景与市政休闲景观步道,东侧、北侧为景色宜人的15米宽城市景观绿化带。



风居住的街道,唤回当代工厂中的温情
本工厂在设计之初,就打破了现代工厂只是强调集约、高效的设计思路。工厂规划围绕中心街道展开空间序列,以中心街道为轴线,串联起厂区主入口、入口广场、办公研发区、休闲运动区、生产区、以及厂外沿河休闲漫步道。





设计将沿河区域点状布置建筑,自然生成生活院落空间,并面朝南侧河道敞开,中心街道与自然院落的有机融合,将风、阳光、雨露渗透到整个厂区,不仅改善了厂区的采光通风,也成为了工人有归属感的空间载体。街道与院落不仅发挥了美化环境作用,还发挥了社会和社区作用,为工厂提供了一处环境友好的员工社交的场所。



美术馆语境下的温情工厂
不同于传统工厂的建造思路,我们借鉴了美术馆中大气完整的空间尺度,雕塑感的体块,虚实对比的空间张力等设计手法,形成美术馆意境的空间效果。



现代感的米白色主色调立面,搭配花园式工厂的空间氛围,完美契合了公司高科技、环保型新材料的文化内核。立面设计以横向舒展的主线条,搭配疏密有致的竖向次线条,形成一种大气、纯粹、干净的工业美学。


工业与艺术的碰撞
厂房的金属设备管道与艺术气质的建筑立面融合在一起,在绿树掩映下,圆管状的金属管道自由穿梭在米白色厂房之间,高反光的金属质感和米白色涂料质感构成对比,形成工业与艺术的碰撞!



入口雨棚处采用粗犷的大跨度外露混凝土梁,形成有力量的工业秩序感,与办公楼的玻璃以及厂房的白色质感形成强烈冲击,给人一种工业与艺术的碰撞之美。




雕刻细节,呈现艺术质感
在细节的处理上,我们采用了美术馆设计中形体切割、立面倾斜、体块叠合等设计手法,在阳光的映射下,形成立体、有层次的光影效果,使得建筑立面细部更具精致感、序列感、雕塑感。



外立面窗户做了外凸混凝土窗套,有效防止流挂的同时,也增加了建筑的立体感。窗户竖向金属框只有3公分宽,且凸出横向金属框1公分,使立面精致且有立体感。


作累了,请抬头看下窗外的风景
我们在设计中考虑工人工作的视角,希望工人在工作劳累的时候,可以抬头看到窗外美丽的风景。研发办公楼的入口大堂设计成通透的玻璃幕墙,可以把庭院的景观引入室内。



周边市政绿化树的高度在8—10米,在三层楼可以很好的看到树梢和蓝天,景观视线最佳,因此在三楼做了一个沿河观景大露台以及休闲平台(待装修)。当走到三层露台和休闲平台,入口雨棚的屋顶花园与周边绿化的树梢以及蓝天白云融为一体,给人天人合一的空间感受,可以很好的缓解工作的疲劳感。







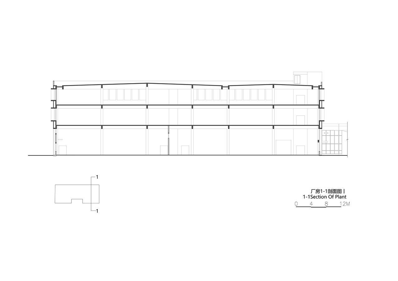
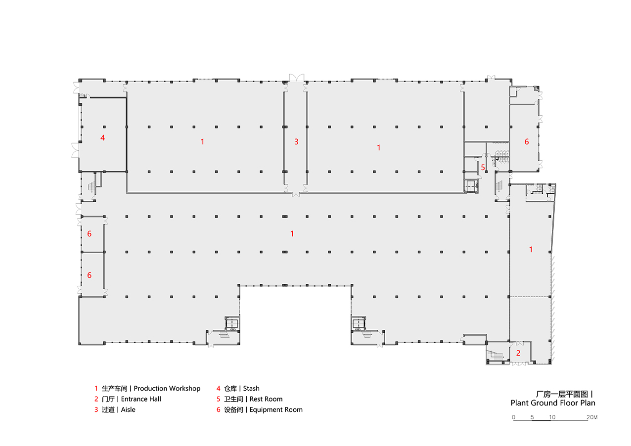
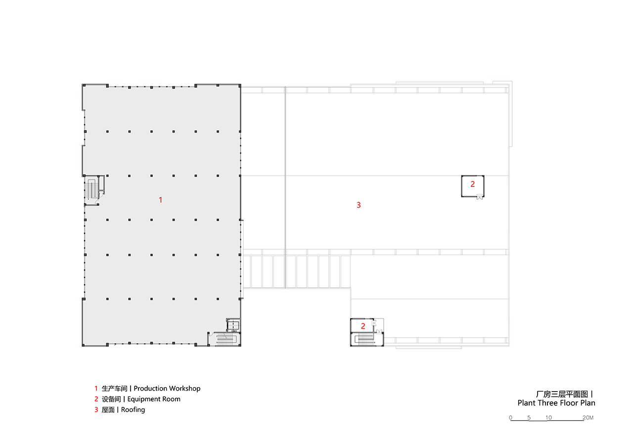
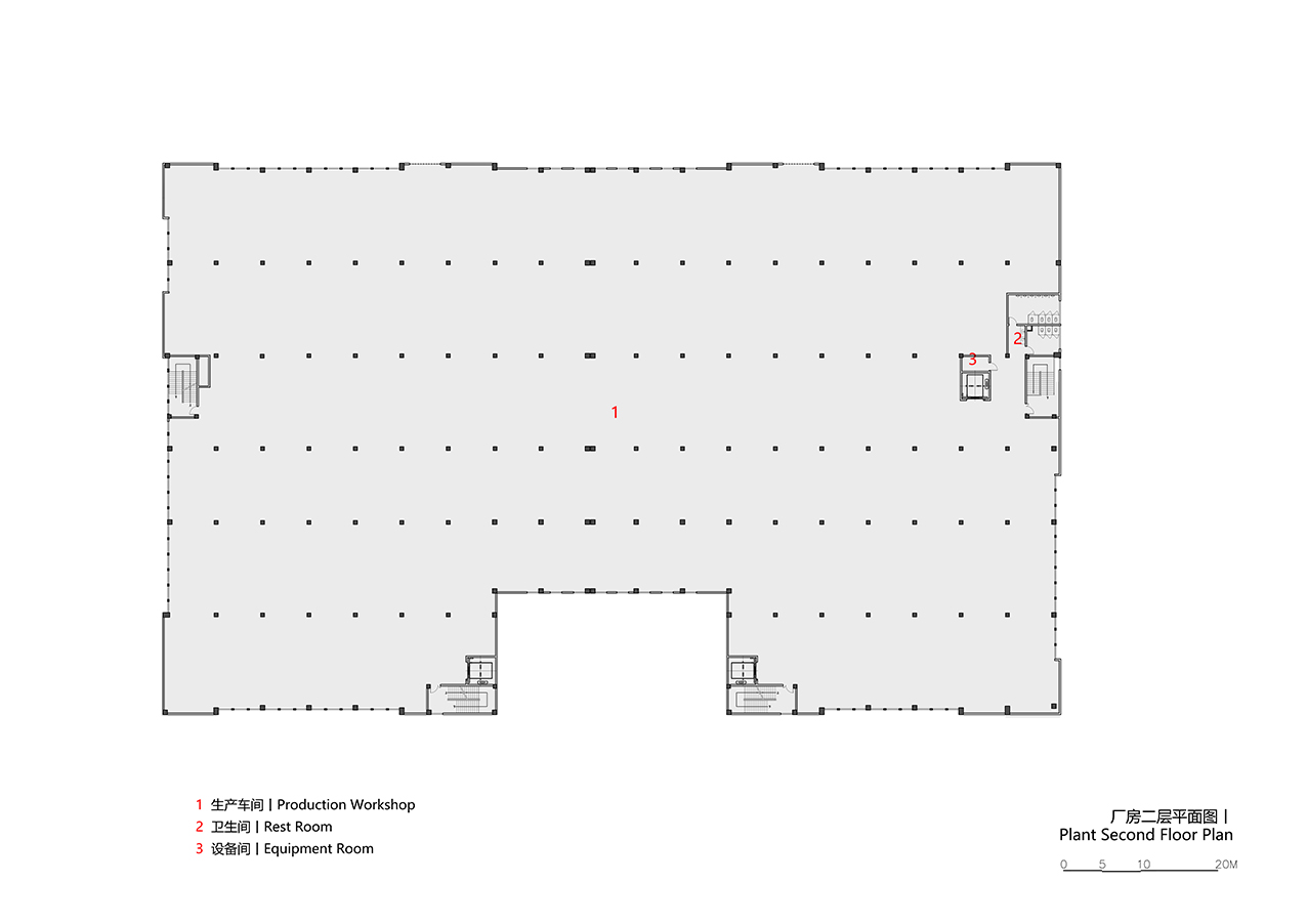
项目图纸




















△节点详图

△节点详图
项目信息
项目名称:浙江恒丰科技新总部工厂
项目类型:建筑
项目地点:浙江省嘉兴市
建成状态:建成
设计时间(起迄年月):2021.06
建设时间(起迄年月):2024.03
用地面积(平方米):31626㎡
建筑面积(平方米):47538㎡
方案设计单位:杭州田字格建筑事务所
主创建筑师:王元胜、周超
设计团队完整名单:郭文君、梁汉全、黄民涛、黄明、朱峰
施工图合作单位:嘉兴联创建筑设计有限公司
设计团队:张兴、李飞、戴君、倪杨佳、虞丽央、方姚明
摄影师:吕晓斌
视频版权:吕晓斌、田字格建筑

BIM建筑网





评论前必须登录!
注册