装配式研究|混凝土构件预应力损失,6个对策合理避免
为了避免钢筋混凝土结构裂缝过早出现,并充分利用其高强度钢筋及高强混凝土,可以在结构构件承受荷载前,使它产生预压力来减小或抵消荷载所引起的混凝土拉应力,从而使结构构件的拉应力不大,甚至处于受压状态,因而产生了预应力混凝土。 引起预应力损失的因...
为了避免钢筋混凝土结构裂缝过早出现,并充分利用其高强度钢筋及高强混凝土,可以在结构构件承受荷载前,使它产生预压力来减小或抵消荷载所引起的混凝土拉应力,从而使结构构件的拉应力不大,甚至处于受压状态,因而产生了预应力混凝土。 引起预应力损失的因...
01 预制混凝土构件模具设计一般规定 混凝土预制构件模具以钢模为主,面板主材选用Q235钢板,支撑结构可选型钢或者钢板,规格可根据模具形式选择,应满足以下要求: 1.模具应具有足够的承载力、刚度和稳定性,保证在构件生产时能可靠承受浇筑混凝土...
骨架(或檩条)的安装 根据骨架材料的不同,施工机具有所不同。大致有如下机械设备:电焊机、砂轮切割机、型材切割机、角磨机、手枪钻、配电盘、电源线、软管胶枪及小五金工具等。
适用于以轻钢龙骨、铝合金龙骨、木龙骨等为骨架,以石膏板、金属板矿棉板、塑料板、玻璃板或格栅等为饰面材料的明龙骨吊顶工程。 一、 材料准备 吊顶板材、龙骨、吊筋等。 二、 机具准备 冲击钻、无齿锯、钢锯、射钉枪、刨子、螺丝刀、吊线锤、角尺、水...
预制构件的设计 装配式结构最大的特点就是等同于现浇,由于装配式结构是由预制柱、预制剪力墙、叠合梁、叠合板、预制楼梯、预制阳台等构成,构件在进行计算时,调整系数与传统结构有细微的差别。 装配式结构在进行结构布置时,为了减少装配的数量及减小装配...

铝合金模板的优点 1、重量轻,每平方米重量不足19Kg。 2、铝合金建筑模板强度高、精度高,板面拼缝少。 3、施工方便,铝合金建筑模板组装方便,可以由人工拼装,或者拼装成片后整体由机械吊装。 4、规范施工,周转次数高,正常使用可达到300次...
随着装配式混凝土结构在国内的推广,夹心保温外墙板在实际工程的应用越来越多。作为夹心保温外墙板中关键的受力部分,拉结件承担着保证夹心墙板三层结构连接成一体的作用,并承担各种工况下的荷载作用。从我国当前常用拉结件的品类及其特点来看,不锈钢拉结件...
框架结构是装配式混凝土结构中应用较为广泛的一种结构体系,常用于住宅、办公楼等。 装配式框架结构吊装 起重机的选择 起重机械选择的原则主要有以下几方面: (1)满足最远、最重构件的吊装要求。 (2)满足最高层构件的吊装高度。 (3)起重臂的回...
套筒灌浆作为预制装配建筑施工的关键工艺,用于竖向构件(如剪力墙和框架柱)及水平构件(如框架梁)的连接:
本工法适用于工业与民用建筑工程中大跨度拱形钢结构安装工程。尤其适合土建主体结构为混凝土框架梁板,上部为大跨度拱形钢结构的工程。 工艺原理 主拱安装在能同时满足设计分段要求和运输要求的前提下,采用分段制作、运输和安装。为确保整体空间结构的稳定...
一、操作要点 1、后浇带模板支设必须采用独立设计系统,与满堂脚手架安拆互不影响,且上下层立杆放置同轴心,后浇带砼未浇筑不得拆除;楼层通道应按方案中明确位置预留架体开口,后浇带板面应作防护,并在实施过程中严格执行。 2、现浇板后浇带模板上部侧...
一、砌筑墙体无架眼施工 工艺做法: 先在脚手架钢管横杆端头焊一T形扁铁,砌筑高度至搭设点,搭设点要选在竖向灰缝与水平缝交叉处;支脚手架时,横杆端头T形扁铁平担在墙上即可,在扁铁放置处可不放砂浆,以便拆装方便。 二、构造柱、圈...

一、本工艺适用范围 1)本工艺适用于铝模现浇混凝土结构一次预留预埋。 2)适用于强弱电一次配管、线盒、电箱安装定位及如何减少浇筑砼后堵塞的风险且保证拆模后的观感。 3)适用于给排水一次预留预埋,止水节、套管、如何安装定位且保证浇筑后的观感及...

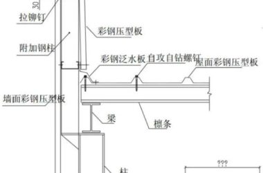
一、外墙与地面连接 二、彩钢泛水板 三、墙角,彩钢包角板 四、外墙与柱连接 五、外墙与基础连接 六、内墙与基(装配式住宅)础连接 七、墙与砖墙连接 八、外墙转角 九、外墙纵向连接 十、外墙纵向拼接

装配式PC建筑外墙挂板或外墙构件拼接后会产生数量众多的接缝,不可避免的会遇到接缝防水处理的难题。 在JGJ 1-2014《装配式混凝土结构技术规程》中第5.3.4条规定:“预制外墙板的接缝及门窗洞口等防水薄弱部位宜采用材料防水和构造防水相结...

01 混凝土叠合楼板分类 按具体受力状态 混凝土叠合楼板按具体受力状态,分为单向受力和双向受力叠合板。 预制底板按有无外伸钢筋可分为“有胡子筋”和“无胡子筋”。 拼缝按照连接方式可分为分离式接缝(即底板间不拉开的“密拼”)和整体式接缝(底板...
随着装配式施工的大力推广,装配式施工项目逐渐增多。为增强工程质量及施工标准化,2017年6月1日,住建部开始实施了3项装配式相关标准(GB/T51231—2016《装配式混凝土建筑技术标准》、GB/T51233—2016《装配式木结构建筑技...

随着新型模板技术在建筑施工领域的推广应用,铝合金模板凭其“两大优”的特点,发展势头迅猛。 ① 技术质量优 铝合金模板本身刚度较好,承载力强,加固完毕后可基本杜绝爆模、漏浆的现象。 混凝土截面构件尺寸控制精准,表面质量平整光滑,可达到饰面或清...

一、 施工准备 (一) 作业条件 1、 抹灰部位的主体结构分部工程均经过有关单位(如建设、设计、监理、施工单位等共同验收,并签认)。门窗框及需要预埋的管线已安装完毕,并经检查验收合格。 2、 抹灰用的脚手架应先搭好,架子要离开墙面200~2...

装配式建筑可以分为结构体系、维护体系、内装体系以及机电体系等。装配式内装区别与传统内装的一大特点就是同层排水技术。 同层排水是指卫生间内卫生器具排水管不穿越楼板,排水横管在本层套内与排水总管连接,一旦发生需要清理疏通的情况,本层套内就能解决...