
BIM建筑|拾捨·竹里馆 / 云南杨永铨建筑设计事务所
引 我爱自然、质朴的材料,醉心于建筑设计。 “敬天惜物、师法自然”是我的设计理念,我相信:“一所房子就是一个世界”。 址 宜宾是长江上游开发最早、历史最悠久的城市之一,古称“僰道”、“戎州”、“叙州”,素有“西南半壁古戎州”的美誉。 初到宜...

引 我爱自然、质朴的材料,醉心于建筑设计。 “敬天惜物、师法自然”是我的设计理念,我相信:“一所房子就是一个世界”。 址 宜宾是长江上游开发最早、历史最悠久的城市之一,古称“僰道”、“戎州”、“叙州”,素有“西南半壁古戎州”的美誉。 初到宜...

本项目位于昆明市吴井路塘子巷社区,该建筑群为旧工业厂区职工宿舍楼,属于昆明市规划发展遗留板块。周边商业板块发展迅速,业态丰富,很有商业活力。业主方是云南本土酒店行业新秀,整个运营管理团队专业化、年轻化,活力四射。经过严格的市场调查策划,私悦...

延庆区,位于北京城西北,距离市中心七十五公里。延庆坐拥八达岭长城与蜿蜒山貌,(BIM培训)历史悠久且自然资源丰富。2019年的世界园艺博览会在这里举办,并将作为2022年冬奥会的主要赛区,势必各方宾客云集。 北京世园凯悦酒店的整体设计,取之...

上海首家治愈系酒店幔麓酒店·杨小姐的花园坐落于浦东新区江镇·新都会生活广场内,由上海末贝建筑装饰设计公司设计,建筑总面积约(BIM学习)8000平方米,其中花园占地3000-4000平方米。 酒店设计融合东南亚元素与古典主义 从庭院式大门进...

酒店设计 君悦大酒店大教堂 东京君悦大酒店的设计可谓不同风格的杂糅,但其建筑本身又自成一派,展现出一副遗世独立的姿态。酒店内的大教堂是超级土豆事务所首次接触此类场所的作品,杉本贵志为此特意学习、参考了诸多欧洲教堂的设计风格,杉本贵志受勒· ...
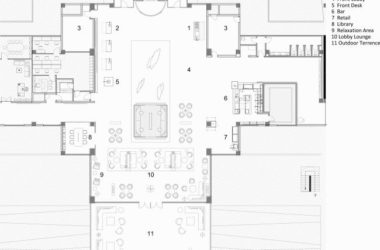
建筑师提供的项目信息。香港理工大学教学酒店(唯港荟酒店 )保留了原有的职工宿舍功能,此外,整座建筑现在还包括262间酒店客房以及教学综合楼。 项目基地在水平方向上非常开阔,无论(BIM设计)在视觉上和空间上都很宽敞,不同的楼层都设置了玻璃中...
W瑞士酒店座落在瑞士西南部阿尔卑斯山脉下的瓦莱州村落中,毗邻著名的滑雪场。concrete建筑事务所设计了这座W酒店集团在瑞士的新酒店,设计受到瑞士山峦与滑雪场地的启发,期望通过提供与雪地景色形成对比的内装实现让人印象深刻的体验。内部空间流...
间筑设计的建筑师在厦门完成了无垠酒店。无垠酒店的基地给设计师的感触是“万石涌翠”,为此建筑师由山间生长出的盒子(建筑)作为酒店设计概念,希望酒店与周边环境相对独立却又几近融合,坐山望海,无境,无垠。 ↑ 入...
一个没有分区的旅店客房,一个马桶与浴缸还有床处于开放空间中的旅店客房。看起来仿佛不能接受,但是这也正是酒店客房这种&ldq(BIM培训)uo;非日常性存在”的魅力所在。酒店的每个客房都不一样,装修的各有风格。在这里,顾...
这木条盘绕的楼梯在斯特拉斯堡酒店餐厅内,这是法国工作室Jouin Manku对这个曾经的马术学院进行翻修,对内部空间进行了重新设计后。 Jouin Manku工作室的Patrick Jouin 和 Sanjit Manku对这座18世纪建筑...
随着扎哈·哈迪设计的迪拜opus办公大楼施工不断向前推进,现在我们一起来仔细看看其内部的设计,同样也是由扎哈·哈迪德操刀设计。整个项目涉及酒店客房和公寓单位等复杂的装修工程(BIM培训),位于建筑结构的上层。 酒...
上海如恩设计研究室,将位于河南省省会城市郑州的建业艾美酒店,打造为郑州的全新地标。河南,曾是中国古老的政治经济及文化中心,也是帝王定都之地,如今吸引着世界各地的旅人。为了通过艺术(文学,自然,饮食,戏剧以及图案)展现河南的历史,建筑师的设计...
在日本南部,隈研吾建筑师事务所为长崎花园露台酒店设计了一个木结构建筑。在地块的西侧,花园露台酒店设置了一连串的独立套房,为客人提供观赏长崎港的奢华视野。 ↑这座新建筑坐落在基地的西侧 这个项目还包含精致的餐饮设施,餐厅酒吧(BIM...
在汤姆•狄克逊创造性的指导下,设计研究工作室完成了伦敦蒙德里安酒店的室内装饰,并于今年早些时候开始正式营业了。酒店坐落在泰晤士河畔,原始的结构早在上世纪70年代由美国的warren Platner设计完成,这位建筑师也因为与众不同...
一个精品酒店最具吸引力的因素不是旅游风景,而是其建筑本身。这是匈牙利某乡村旅游目的地的一个小项目——“Butik酒店的客房设计”,该项目的业主希望将他们现有的宾馆改造成力所能用的最诱人的客房。...
你可曾去过没有房间的旅馆吗? 你可曾去过整个旅馆的颜色只有四种的旅馆吗? 你可曾去过把客人塞进像卵囊一样的空间里而且最多睡9个小时的旅馆吗? 欢迎来到 东京Hotel 9h. 旅馆配有很卫生的一次性拖鞋 Hotel 9h 的客人须知写在了袋...
这个项目的起因是业主的朋友想出租这个场地,而总价又不高,便顺理成章的接手了,但思前想后,不知道用这个周边环境复杂的三层破落建筑做什么,所以找到我一起商量。我是个爱住店的人,不管出差还是旅行,都会挑一些较特别的酒店一住,一来借屋过夜,二来感受...
这种路边的水泥管一度是无家可归的流浪汉们特别青睐的住所,如今Techne Architects将这一元素融入到一座位于澳大利亚墨尔本的酒店设计中,使其成为一道吸引眼球的独特风景。 Prahran Hotel是一幢两层高、建筑面积为550平方...
台中红点文旅是在有35年历史的银河大饭店基础上改造而来的。在2014年对这栋建筑进行了重建,并使其重获新生。设计团队对酒店所在地区进行了深入的研究。他们发现,在这个历史悠久的地区各种精美材质打造的优雅建筑林立。因此他们决定要尽最大努力为酒店...
中国广州源计划建筑事务所,其名字来源于其对废弃的混凝土建筑巧夺天工的翻新改造,该事务所最近新完成了一个青年旅社的(BIM设计)项目,作为先前规划的iD艺象艺术区项目的一部分。建筑原先是作为宿舍,供给濒临倒闭的鸿华印染厂在改革开放以后进入深圳...